Ir al contenido
  • Works
    • Selected
    • Directions
    • Archive
  • Educational
  • About
    • Profile
    • Awards
  • Contact
  • CA
  • Works
    • Selected
    • Directions
    • Archive
  • Educational
  • About
    • Profile
    • Awards
  • Contact
  • CA

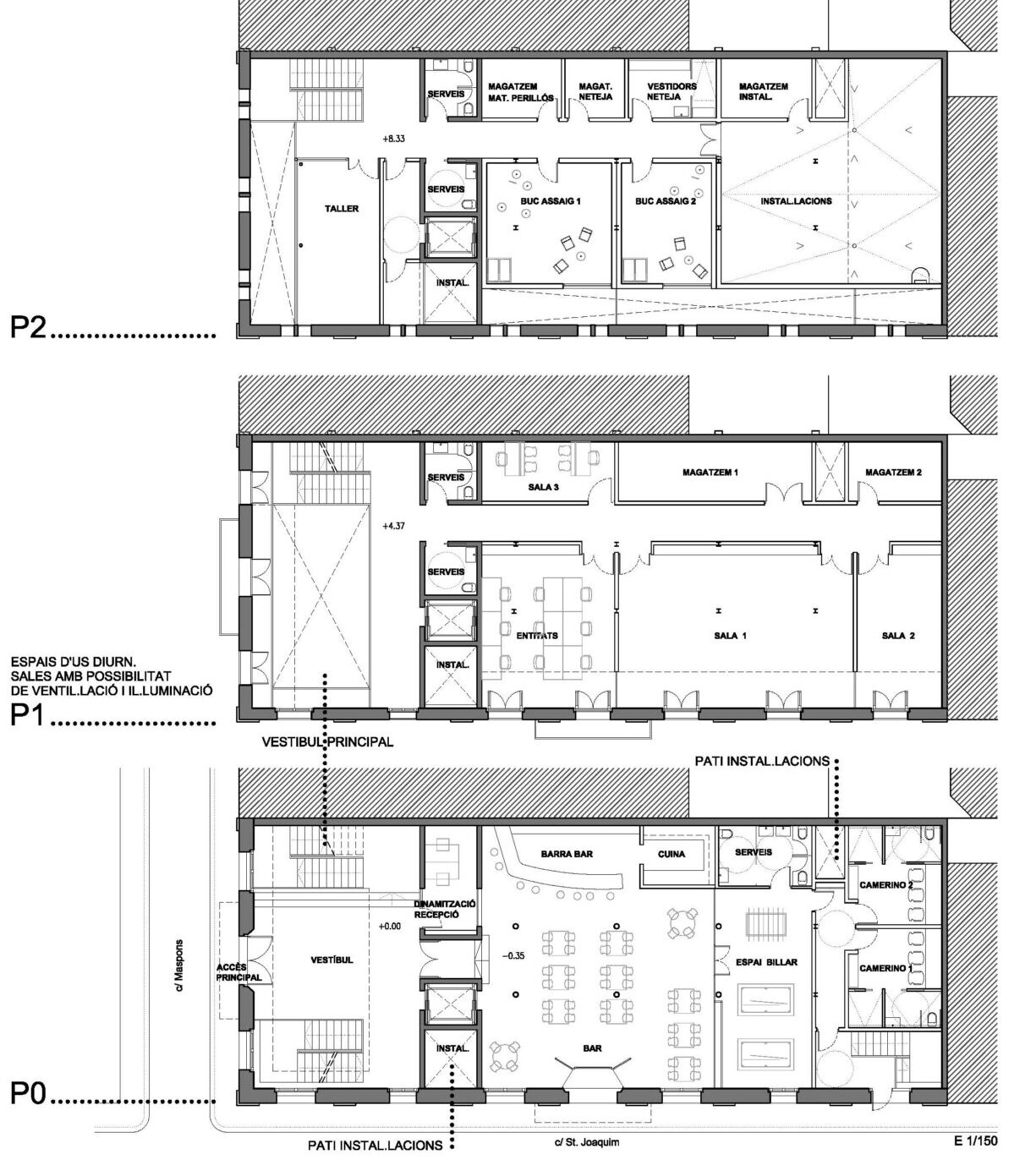
Centre Cívic La Violeta

  • Josep Vila, Elisabet Ferrer, Esteban Canosa
  • Carrer de Sant Joaquim, Gràcia., Barcelona
  • 1.310 m2 / 2.184.873 €
  • BIMSA
  • Concurs obert

Copyright © 2026 Daab, Todos los derechos reservados.

  • Aviso legal
  • Política de privacidad