Ir al contenido
Works
Selected
Directions
Archive
Educational
About
Profile
Awards
Contact
CA
Works
Selected
Directions
Archive
Educational
About
Profile
Awards
Contact
CA
Descripció
La proposta…
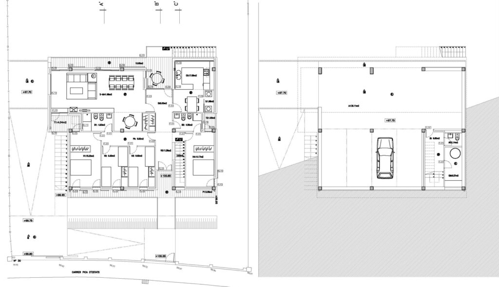
Casa Andrés
C/. Pica d'Estats 30, LLiça de Munt. Barcelona
360 m2 / 340.000€
Privat
Construït
Habitatge, Obra nova