Ir al contenido
Works
Selected
Directions
Archive
Educational
About
Profile
Awards
Contact
CA
Works
Selected
Directions
Archive
Educational
About
Profile
Awards
Contact
CA
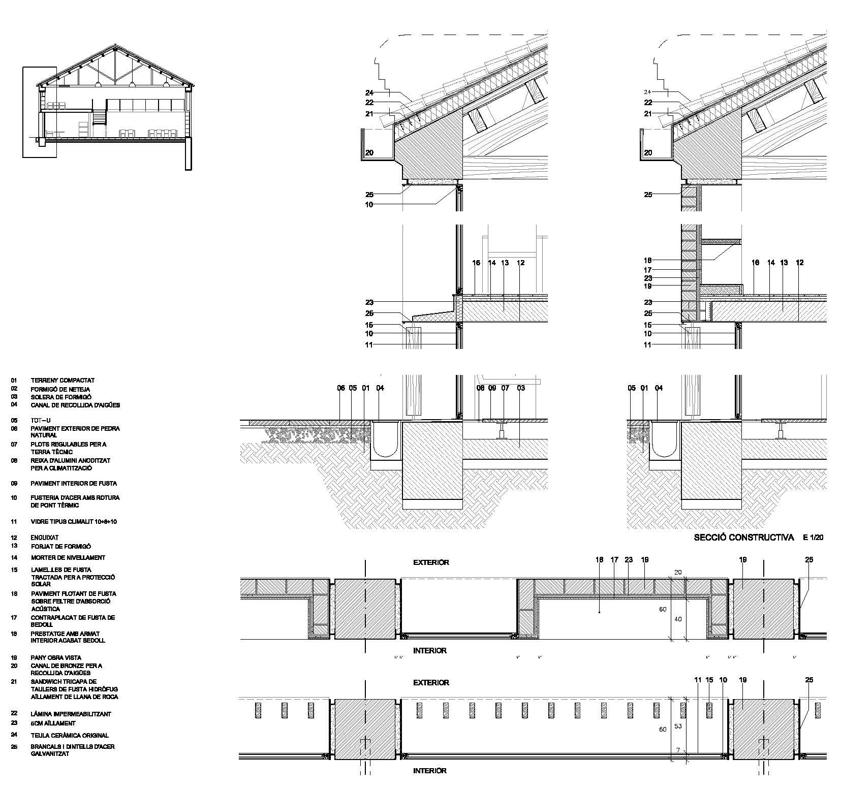
Biblioteca Alella
C/. Torrent de Vallbona, Alella. Barcelona
1570 m2
Ajuntament d'Alella
Equipament. Reforma, rehabilitació i ampliació
Concurs obert: 2on lloc