Ir al contenido
  • Works
    • Selected
    • Directions
    • Archive
  • Educational
  • About
    • Profile
    • Awards
  • Contact
  • CA
  • Works
    • Selected
    • Directions
    • Archive
  • Educational
  • About
    • Profile
    • Awards
  • Contact
  • CA

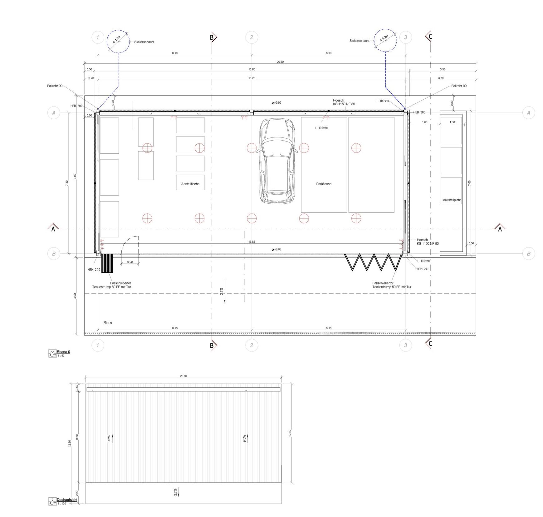
Magatzem Brigades Stade

  • Stade, Hamburg. Alemanya.
  • 145 m2
  • CODEMA

Copyright © 2026 Daab, Todos los derechos reservados.

  • Aviso legal
  • Política de privacidad