Ir al contenido
Works
Selected
Directions
Archive
Educational
About
Profile
Awards
Contact
CA
Works
Selected
Directions
Archive
Educational
About
Profile
Awards
Contact
CA
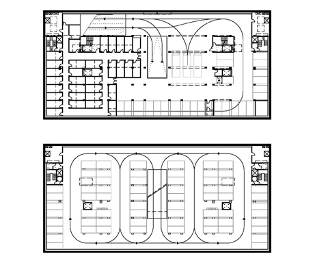
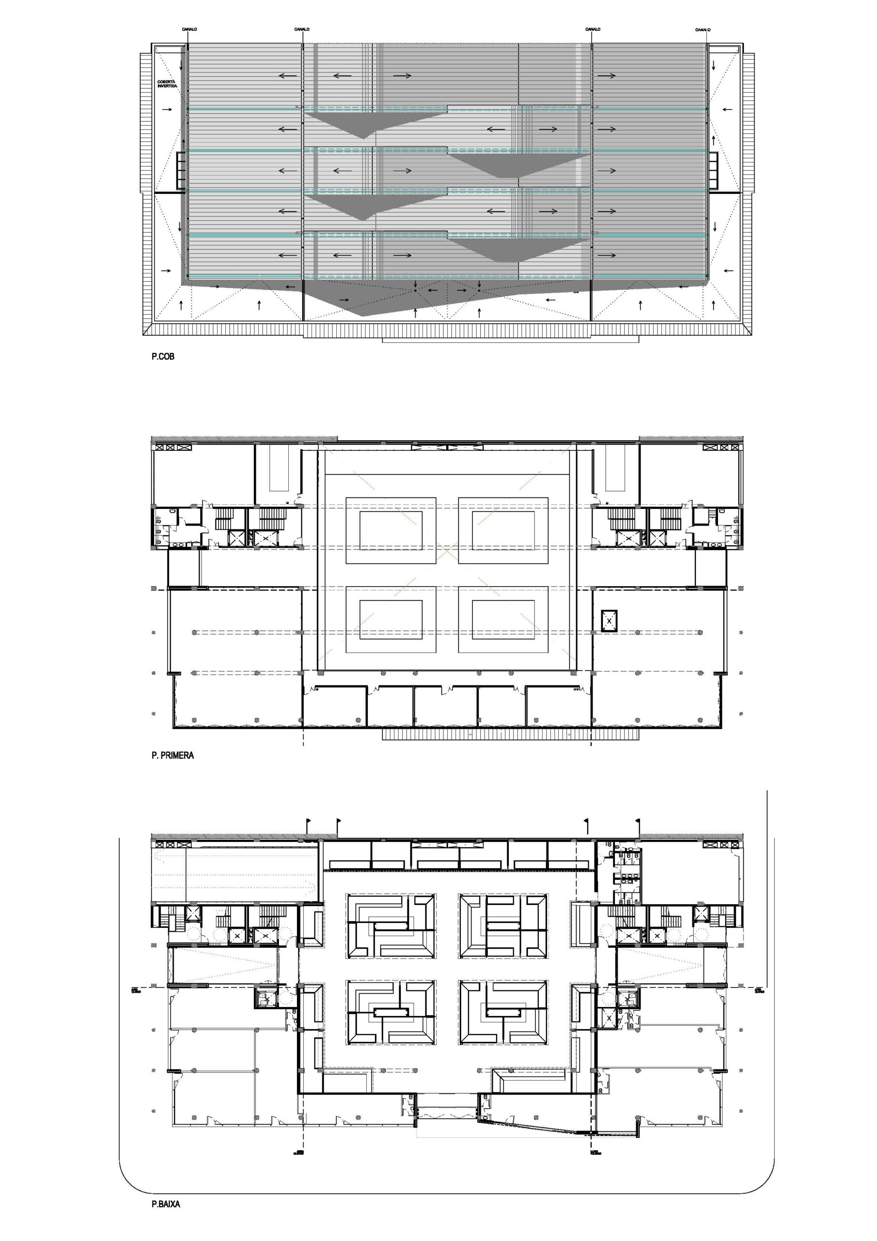
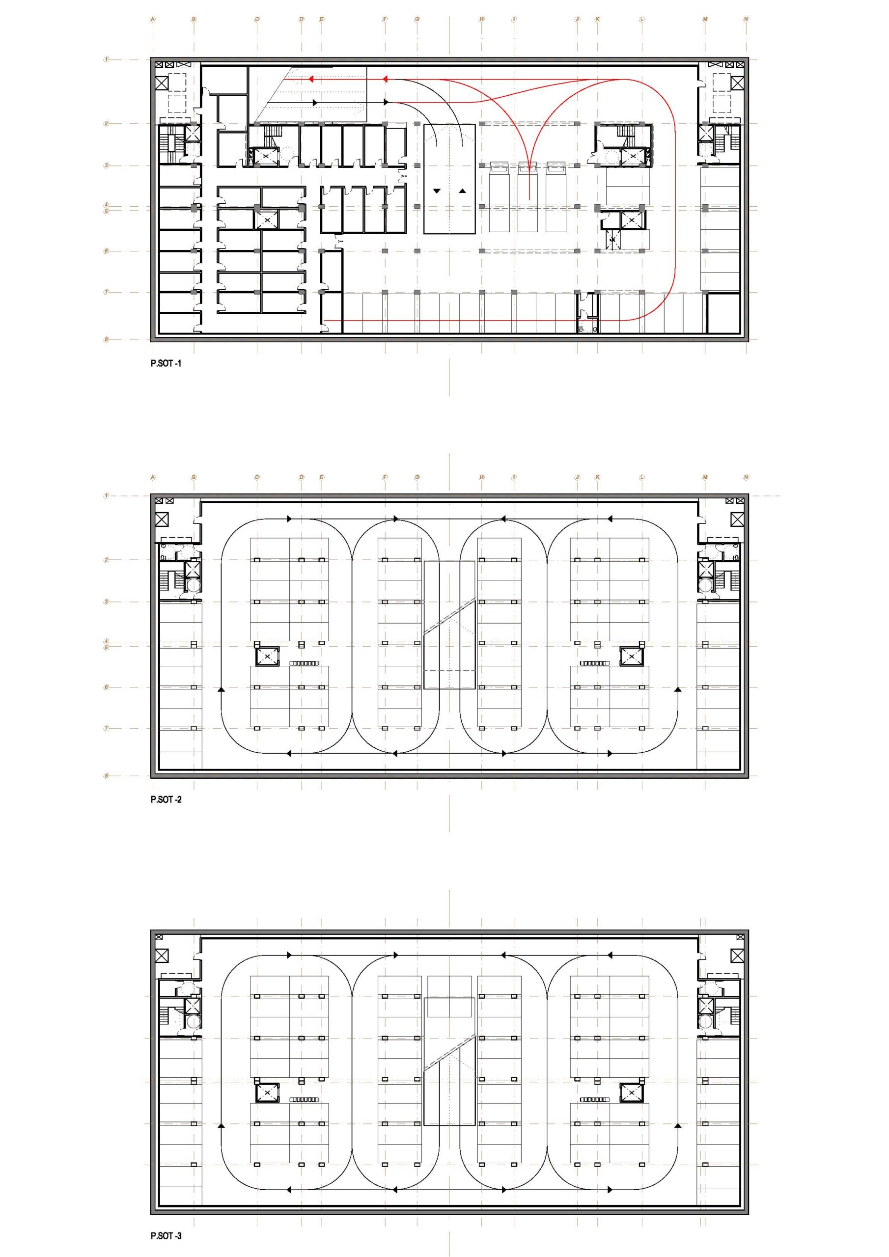
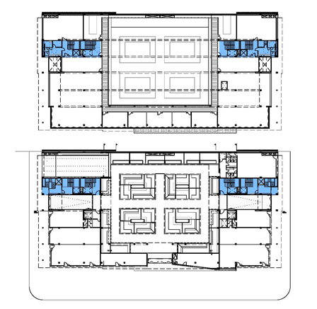
Mercat Sant Jordi
Arquitectes: Josep Vila, Xavier LListosella, Mònica Beguer
Plaça Catalunya. Sant Boi del LLobregat, Barcelona
9.065 m2 / 8.200.000 €
Obra nova. Construït
Ajuntament de Sant Boi del LLobregat