Descripción

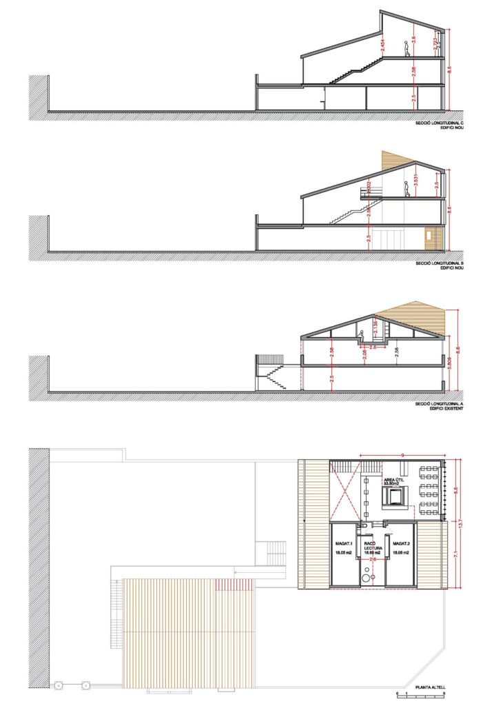
El projecte proposa reformar i ampliar l’edifici actual dedicat a la educació infantil de lescola Balmes.

L’edifici existent, era originalment un habitatge unifamilar que es transformà en escola infantil. L’ampliació dobla la superficie original i proposa unificar la imatge global de l’equipament adaptant la volumetria original a la nova volumetria i uniforman els materials d’acabat de les façanes per entendre la nova escola com un sol edifici. 

Alhora, la proposta planteja unes noves relacions amb les edificcacions de primària amb passeres i porxos en dies de pluja.