Descripció
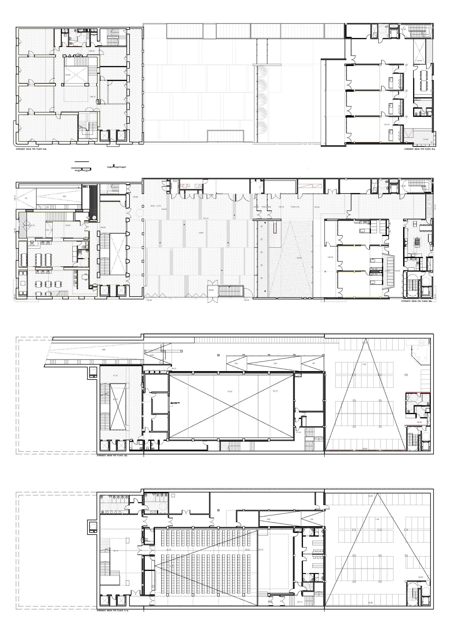
El programa a resoldre haurà d’incloure un centre sociocultural, una sala d’actes per a 300 a 350 persones, guarderia, aparcament i plaça entre el centre i l’escola.
L’edificació principal amb façana al Carrer Gran de Gràcia és la que mereix un tractament especial de façanes ja que consta a la fitxa del pla de protecció, es tracta de la casa del Baró de la Barre i constitueix un petit palau de finals del segle XVIII.
El projecte planteja la rehabilitació de l’edifici mantenint com a elements distributius les parets de càrrega existents i fent-les servir com a noves parets de càrrega dels nous forjats de l’edifici.
Dado que el programa a colocar quedará dividido en dos zonas totalmente diferenciadas con niveles opuestos, el proyecto plantea formar dos grandes huecos interiores de relación espacial de los diferentes ámbitos.
- C/. Gran de Gràcia. Vila de Gràcia, Barcelona
- 5.800 m2 / 5.173.033€
- BIMSA
- Construït
- Cultural. Reforma, rehabilitació i ampliació.
- Concurs obert: 1er premi