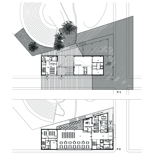
Centre Cívic Ca N'Aurell