Ir al contenido
Works
Selected
Directions
Archive
Educational
About
Profile
Awards
Contact
CA
Works
Selected
Directions
Archive
Educational
About
Profile
Awards
Contact
CA
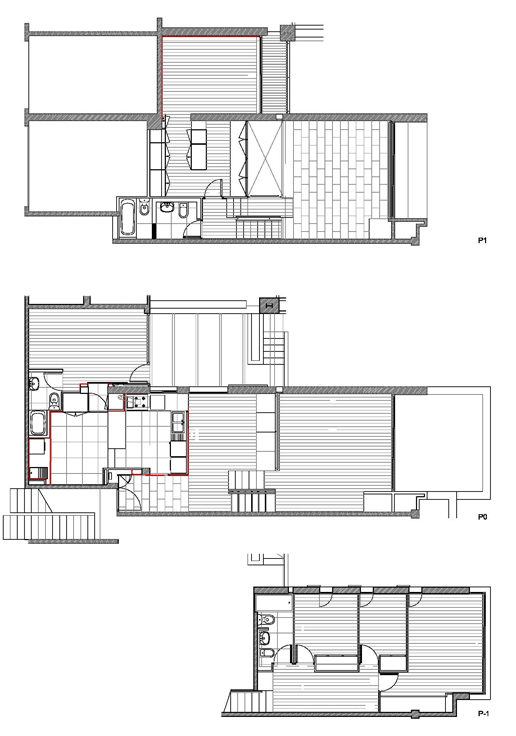
Descripció
La proposta…
Casa Duxans
Josep Vila i Mònica Beguer
C/.Arquitecte August Font 39. St. Gervasi. Barcelona
220 m2
Privat
Construït
Habitatge, reforma i ampliació