Ir al contenido
Works
Selected
Directions
Archive
Educational
About
Profile
Awards
Contact
CA
Works
Selected
Directions
Archive
Educational
About
Profile
Awards
Contact
CA
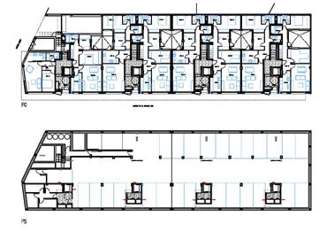
35 HABITATGES FBEX
Josep Vila i Elisabet Ferrer
C/ de la Guàrdia Civil, Tàrrega. Lleida
4.260 m2 / 3.185.000 €
FBEX Promocions Inmobiliaries
Construït
Habitatge. Obra nova